Skip to content
Aalva arquitetos

Aalva arquitetos

  • projetos
  • sobre
  • contato
  • todos
  • residencial
  • comercial
  • interiores
  • objeto

residência no villa de león

Continue Reading

anterior
apartamento no morumbi
apartamento no jd. estoril
próximo
1 / 21
All Projects
26 de novembro de 202424 de março de 2026 by aalvaarquitetos
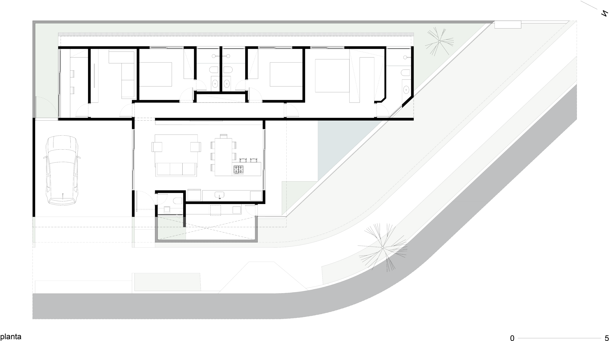
residência no villa de león
Posted in residencial todos

localização: piratininga, são paulo
ano: 2025
metragem: 175,66m²

arquitetos líderes: gustavo gimenez, gustavo vidrih e pedro tremontin
equipe: giovana ávila

Gerenciar o consentimento
Para fornecer as melhores experiências, usamos tecnologias como cookies para armazenar e/ou acessar informações do dispositivo. O consentimento para essas tecnologias nos permitirá processar dados como comportamento de navegação ou IDs exclusivos neste site. Não consentir ou retirar o consentimento pode afetar negativamente certos recursos e funções.
Funcional Sempre ativo
O armazenamento ou acesso técnico é estritamente necessário para a finalidade legítima de permitir a utilização de um serviço específico explicitamente solicitado pelo assinante ou utilizador, ou com a finalidade exclusiva de efetuar a transmissão de uma comunicação através de uma rede de comunicações eletrónicas.
Preferências
O armazenamento ou acesso técnico é necessário para o propósito legítimo de armazenar preferências que não são solicitadas pelo assinante ou usuário.
Estatísticas
O armazenamento ou acesso técnico que é usado exclusivamente para fins estatísticos. O armazenamento técnico ou acesso que é usado exclusivamente para fins estatísticos anônimos. Sem uma intimação, conformidade voluntária por parte de seu provedor de serviços de Internet ou registros adicionais de terceiros, as informações armazenadas ou recuperadas apenas para esse fim geralmente não podem ser usadas para identificá-lo.
Marketing
O armazenamento ou acesso técnico é necessário para criar perfis de usuário para enviar publicidade ou para rastrear o usuário em um site ou em vários sites para fins de marketing semelhantes.
  • Gerenciar opções
  • Gerenciar serviços
  • Manage {vendor_count} vendors
  • Leia mais sobre esses propósitos
Ver preferências
  • {title}
  • {title}
  • {title}