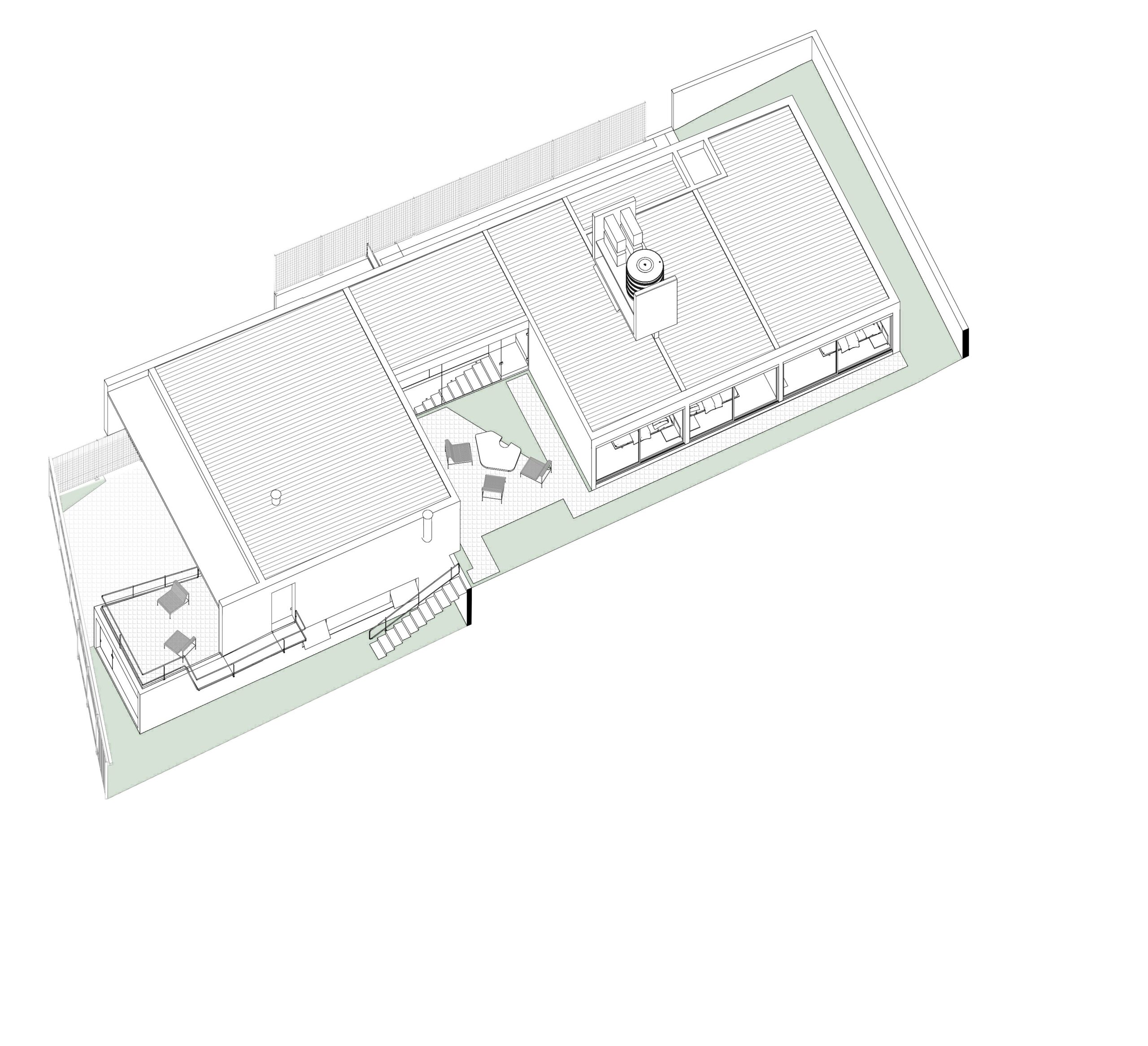
data do projeto: 2022
localização: jaú, são paulo
área: 252,13m²
arquitetos líderes: gustavo gimenez, gustavo vidrih e pedro tremontin
equipe: isabela ravagnani e marcos menezes






















data do projeto: 2022
localização: jaú, são paulo
área: 252,13m²
arquitetos líderes: gustavo gimenez, gustavo vidrih e pedro tremontin
equipe: isabela ravagnani e marcos menezes